农村别墅怎么建?每个人有每个人自己的答案,但抛开这些外在的因素,咱们要的房子,就是实用漂亮,只要能满足这两点需求,那就是好房子。
今天小宅给大家推荐的这10款二层农村建房户型,颜值很高,占地面积不大,最适合农村建。二层农村自建房户型,颜值很高,占地面积不大,造价也经济。
户型一:
占地尺寸:8.3m×12.76m
占地面积:116.32㎡
建筑面积:230㎡
建筑高度:9.656m
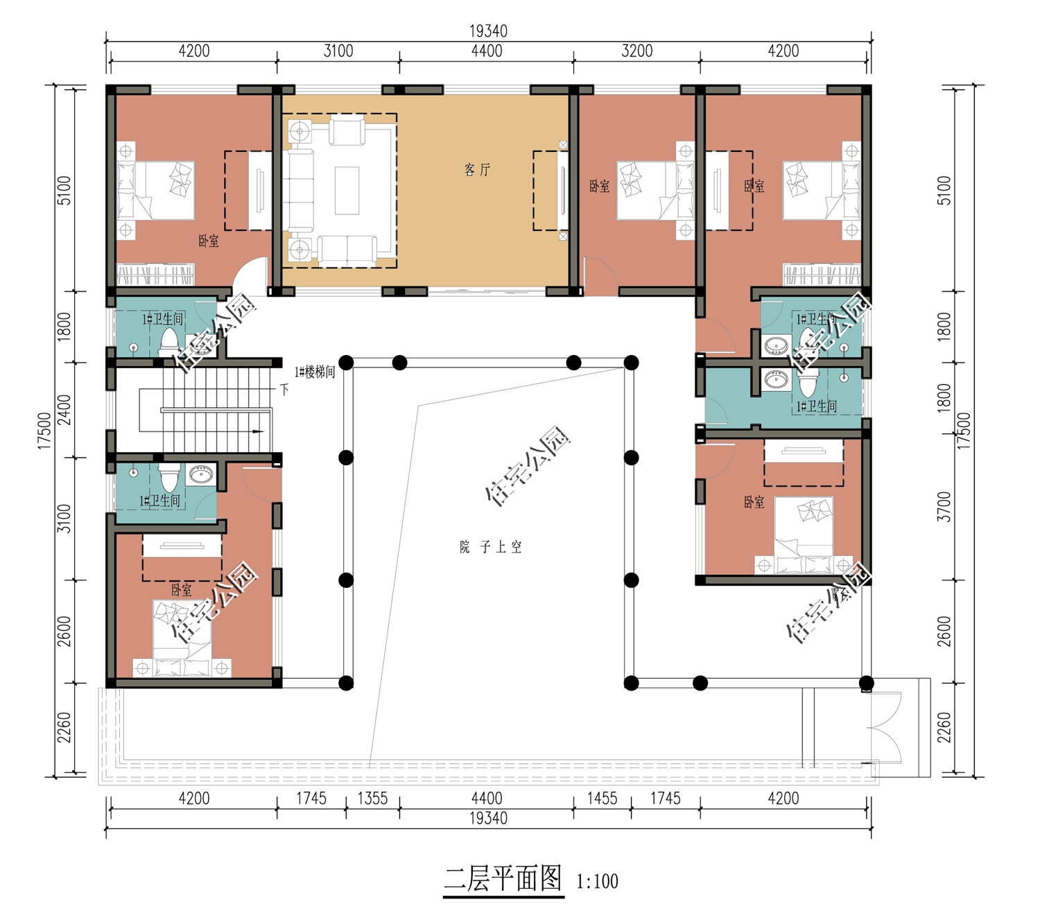
户型二:
占地尺寸:18.76m*16.76m
占地面积:186㎡
建筑面积:324㎡
建筑高度:7.35m
户型三:
占地尺寸:10.2m×11.6m
占地面积:106㎡
建筑面积:222㎡
建筑高度:7m
户型四:
占地尺寸:20.2m×13.2m
占地面积:201㎡
建筑面积:395㎡
建筑高度:10.5m
户型五:
占地尺寸:11.76m×10.93m
占地面积:128.5㎡
建筑面积:218㎡
建筑高度:9.5m
户型六:
占地尺寸:19.34m×17.5m
占地面积:214.5㎡
建筑面积:424㎡
建筑高度:9.2m
户型七:
占地尺寸:7.76m×18.26m
占地面积:141.6㎡
建筑面积:232.5㎡
建筑高度:6.35m
户型八:
占地尺寸:13.4m×10.2m
占地面积:140.27㎡
建筑面积:274.10㎡
建筑高度:10.9m
户型九:
占地尺寸:13m×12.12m。
占地面积:152㎡。
建筑面积:267㎡。
建筑高度:9.788m。
户型十:
占地尺寸:13m×10m
占地面积:141.83㎡
建筑面积:312.88㎡
建筑高度:10.35m
江苏省无锡市市场监管局抽查15批次燃气热水器产品合格率100%
中据江苏省无锡市市场监管局网站消息,2022年度,无锡市市场监督管理局对燃气热水器产品质量进行了监督抽查。共抽查产品15批次,合格率100%。燃气热水器产品质量监督抽查企业名单及结果序号产品具体名称标称商标生产日期/货号规格型号标称生产企业标称生产企业地址销售单位/电商样品来源抽查结果1家用供热水燃...
什么品牌的美缝剂好用?2020年美缝剂十大品牌排行榜
壹家美缝剂2011年创立于香港九龙,旗下有武汉绿巢科技有限公司、徐州凯佳建材有限公司。拥有国家新型实用证书和绿色环保推广产品证书,它的优势在于科技创新和环保材料。缝美家美缝剂缝美家由上海好卓建材有限公司运营,专业从事美缝剂、研发、生产、施工、制造、销售的品牌。公司拥有现代化的厂房,先进的研发和生产设...
不懂别瞎选墙纸墙布!看完建材商的劝告再决定买,别学我家全选错
不懂别瞎选墙纸墙布!看完建材商的劝告再决定买,别学我家全选错!装修,墙面装饰现在选择是很多人比较纠结的地方,不知道到底是直接大白墙呢?还是贴墙纸,或者说墙布,因为不了解,对其墙纸和墙布之间的选择非常的纠结,不知道到底选择什么?那今天,小编就和大家来聊聊墙纸和墙布,希望看完之后大家选择再也不纠结。一、...
介绍32款叶子比花美的喜阴观叶绿植,不用阳光、无需开花也很美腻
室内养花最大的问题就在于光线太弱,养那些开花类的植物是养不好的,因为光照不足不容易开花。那么不如养一些专业的绿植啊,比如下面这些植物,它们的叶子比那些开花的植物还好看呢!▲1.虎斑秋海棠虎斑秋海棠是观叶海棠中的一种,它的叶子上面是好看的老虎斑纹,株型矮小紧凑,特别适合盆栽,叶子长得很茂盛,观赏价值一...